Casa de condomínio à venda Jardim Nova Santa Paula com 84m² e 2 quartos por R$ 350.000 - 181435717-kartodromo-implantacao.jpg
Casa de condomínio à venda Jardim Nova Santa Paula com 84m² e 2 quartos por R$ 350.000 - 1127618917-vila-kartodromo-3.jpg Casa de condomínio à venda Jardim Nova Santa Paula com 84m² e 2 quartos por R$ 350.000 - 2018484078-vila-kartodromo-2.jpg Casa de condomínio à venda Jardim Nova Santa Paula com 84m² e 2 quartos por R$ 350.000 - 54930275-vila-kartodromo-5.jpg Casa de condomínio à venda Jardim Nova Santa Paula com 84m² e 2 quartos por R$ 350.000 - 190723089-vila-kartodromo-4.jpg
Vista da Rua

1/15

Rogerio_aa - Negociando - Casa de condomínio com 84m² - Jardim Nova Santa Paula - São Carlos

Rogerio_aa

Proprietário do imóvel

Visto por último há mais de um dia

Casa de vila

Rua Doutor Donato dos Santos - Jardim Nova Santa Paula, São Carlos - SP

Valor de venda

R$ 350.000

destaque destaque destaque

Valor de aluguel

R$ 1.990

Condomínio

R$ 85

IPTU

R$ 60

Valor por m²

R$ 4.167

84 m²

2 quartos

2 banheiros

2 vagas

12 anos

Imóvel de três pavimentos, situado em vila com 9 casas:
Andar Térreo com vaga para dois carros e espaço para multiplos usos, depósito e hall de entrada
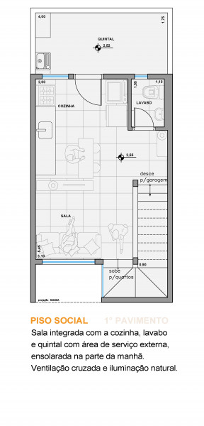
Primeiro Pavimento com sala e cozinha integrados, lavabo e quintal descoberto.
Segundo Pavimento com dois quartos, banheiro e varanda.

Próximo ao Parque do Kartódromo, região atendida por comércio, mercado, quitanda, posto de combustível, restaurantes, etc.

Ler mais >

Ler menos >

Tem no imóvel

Lavanderia

Quintal

Tem no condomínio

Área compartilhada

Valor de venda

R$ 350.000

destaque destaque destaque

Valor de aluguel

R$ 1.990

Condomínio

R$ 85

IPTU

R$ 60

Valor por m²

R$ 4.167

Veja mais imóveis na região de Jardim Nova Santa Paula

Valor de venda

R$ 350.000

×
Casa de condomínio à venda Jardim Nova Santa Paula com 84m² e 2 quartos por R$ 350.000 - 181435717-kartodromo-implantacao.jpg
Casa de condomínio à venda Jardim Nova Santa Paula com 84m² e 2 quartos por R$ 350.000 - 1127618917-vila-kartodromo-3.jpg
Casa de condomínio à venda Jardim Nova Santa Paula com 84m² e 2 quartos por R$ 350.000 - 2018484078-vila-kartodromo-2.jpg
Casa de condomínio à venda Jardim Nova Santa Paula com 84m² e 2 quartos por R$ 350.000 - 54930275-vila-kartodromo-5.jpg
Casa de condomínio à venda Jardim Nova Santa Paula com 84m² e 2 quartos por R$ 350.000 - 190723089-vila-kartodromo-4.jpg
Casa de condomínio à venda Jardim Nova Santa Paula com 84m² e 2 quartos por R$ 350.000 - 33984127-vila-kartodromo-1.jpg
Casa de condomínio à venda Jardim Nova Santa Paula com 84m² e 2 quartos por R$ 350.000 - 884203782-vila-kartodromo-6.jpg
Casa de condomínio à venda Jardim Nova Santa Paula com 84m² e 2 quartos por R$ 350.000 - 1879897814-vila-kartodromo-7.jpg
Casa de condomínio à venda Jardim Nova Santa Paula com 84m² e 2 quartos por R$ 350.000 - 83204261-vila-kartodromo-8.jpg
Casa de condomínio à venda Jardim Nova Santa Paula com 84m² e 2 quartos por R$ 350.000 - 1002025034-vila-kartodromo-9.jpg
Casa de condomínio à venda Jardim Nova Santa Paula com 84m² e 2 quartos por R$ 350.000 - 1838884233-vila-kartodromo-10.jpg
Casa de condomínio à venda Jardim Nova Santa Paula com 84m² e 2 quartos por R$ 350.000 - 890879972-vila-no-kartodromo-folder-0-implantacao.jpg
Casa de condomínio à venda Jardim Nova Santa Paula com 84m² e 2 quartos por R$ 350.000 - 1228315767-vila-no-kartodromo-folder-1-garagem.jpg
Casa de condomínio à venda Jardim Nova Santa Paula com 84m² e 2 quartos por R$ 350.000 - 1462542717-vila-no-kartodromo-folder-2-social.jpg
Casa de condomínio à venda Jardim Nova Santa Paula com 84m² e 2 quartos por R$ 350.000 - 1670843606-vila-no-kartodromo-folder-3-quartos.jpg
Para melhorar a sua experiência no site utilizamos cookies para personalizar conteúdo e anúncios. Clique em Aceitar e fechar para consentir a utilização dos cookies, visite a política de privacidade para mais informações.