
Joao
Proprietário do imóvel
Visto por último há mais de um dia
Terreno 1038m² Privacidade e por do sol exclusivo
Rua Presidente Prudente - Jardim Primavera, Itupeva - SP
1038 m²
1 banheiro
TERRENO PARA QUEM BUSCA MUITA PRIVACIDADE E PÔR DO SOL EXCLUSIVO.
O terreno tem 1.038m² e fica no condomínio Village Morro Alto, um dos condomínios mais bonitos e reservados de Itupeva (próximo ao centro da cidade). Localizado em uma das partes mais altas do condomínio, o terreno está no final de uma rua sem saída, com vizinho apenas do seu lado esquerdo (olhando de frente), tendo ao seu lado direito uma belíssima mata preservada do próprio condomínio. Desta forma tem apenas 1 vizinho que já possui uma casa construída e bem distante da divisa do terreno, o que trará muita privacidade.
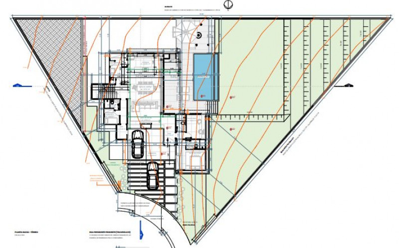
O terreno tem um formato de trapézio (frente menor e fundo maior), sendo uma parte plana e outra parte em declive, o que permite a construção de uma casa exuberante (na parte plana) com uma piscina de borda infinita e com vista permanente para a mata preservada e o pôr do sol, que se põe nas montanhas atrás da mata (vista exclusiva do pôr do sol).
Já possui uma planta recém aprovada na prefeitura e com alvará recém emitido, o que fará com que o comprador tenha uma economia de quase 20 mil reais (caso se interesse pela planta em questão).
O estilo da planta é moderno, conceito aberto (sala, cozinha, churrasqueira e lazer) e toda ela projetada para o lado direito do terreno (olhando de frente), para a mata preservada, que dará total privacidade à casa e uma bela vista de todos os cômodos, com piscina em borda infinita e com um gramado descendo alguns degraus que poderá ser um campinho/quadra, desta forma o terreno será quase todo aproveitado. Confira o projeto nas fotos.
Anúncio 27/01/2024.
Ler mais >
Ler menos >
Tem no imóvel
Saneamento
Terreno limpo
Iluminação na rua
Fácil acesso
Rua asfaltada