
Fabio
Proprietário do imóvel
Visto por último há mais de um dia
Pertinho do Maracanã, ótimo investimento em São Cristóvão/RJ
Rua Euclídes da Cunha - São Cristóvão, Rio de Janeiro - RJ
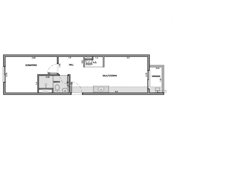
35 m²
1 quarto
1 banheiro
Localizado na Rua Euclides da Cunha, projeto da Construtora Cury, o Condomínio Alto São Cristóvão, terá 246 unidades com varanda em 1 bloco com 4 elevadores. A poucos metros da Quinta da Boa Vista e Museu Nacional, das estações de metrô Maracanã e São Cristóvão e, claro, a Feira dos Paraíbas.
Está a poucos passos do Hospital Quinta D'or, das Universidades Estácio de Sá e Veiga de Almeida, também é caminho para outros bairros da Zona Norte, como, por exemplo: Tijuca e Maracanã. Tem fácil e rápido acesso a Rodoviária Novo Rio, a Região Central do Rio, Zona Sul e Niterói.
A unidade a ser vendida está localizada no 6º andar, possui 1 quarto, é Sol Nascente e não possui vaga de garagem.
Condomínio contará com a área de entretenimento na cobertura:
1) Piscina;
2) Bar na piscina;
3) Salão de Festas (com cozinha de apoio ao lado);
4) Espaço Gourmet (Churrasqueira);
5) Academia;
6) Brinquedoteca;
7) Terraço descoberto.
O empreendimento ainda conta com Oficina compartilhada, Espaço Petcare, Administração na cobertura e bicicletário suspenso coberto e descoberto no pavimento térreo.
E diferenciais como: reservatório de reuso, arejadores nas torneiras, previsão para instalação de aquecedor a gás, bacia com duplo acionamento e armário inteligente para recebimento de encomendas.
ATENÇÃO: o apartamento foi comprado na planta e financiamento pela Caixa Econômica Federal. A previsão da construtora é no primeiro semestre de 2024, podendo ser antecipado para o segundo semestre de 2023.
Ficou interessado? Venha fazer uma proposta, pretendo vende-lo o mais rápido por motivos particulares!
Ler mais >
Ler menos >
Tem no imóvel
Varanda
Tem no condomínio
Piscina
Interfone
Salão de festas
Espaço infantil
Academia
Brinquedoteca